Hoppa till innehåll

Telefonplan, Viridum

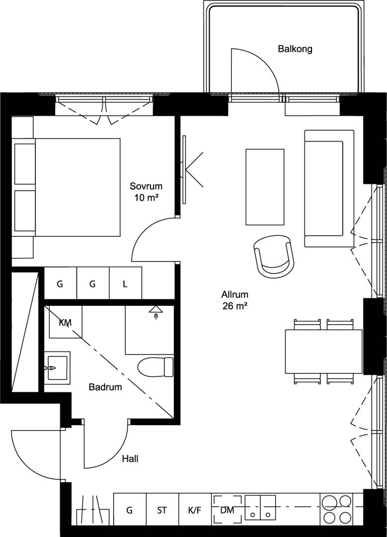
2 rok, 45 m2

Gavellägenhet med fantastisk utsikt!

Otroligt ljus tvåa med fönster i två väderstreck och balkong. Öppen planlösning mellan kök och vardagsrum och här har du en fantastisk utsikt över området. Rymligt badrum med kombimaskin.

Lägenhetens inredning

Bostäderna i Viridum präglas av en harmonisk mix av ljusa färger och naturnära material. Samtliga väggar målas i en ljus och varm, gråbeige nyans. Rumsgolven får en svagt vitpigmenterad ekparkett och hallen får samma sandstensmönstrade granitkeramik som våtrummen.

Visa mer

Kök

Köket i Viridum är utformat för att vara en harmonisk kombination av design och funktionalitet. Den ljusa ekparketten möter skåpsluckor i en varm, sandig ton med stilrena och diskreta handtag som förstärker den tidlösa känslan. Bänkskivan och stänkskyddet är i ett hållbart laminat med en kalkstensinspirerad finish som knyter samman kökets naturliga färgpalett och skapar en rofylld atmosfär.

I Viridum är köket mer än en plats för matlagning – det är en central del av ditt hem. Den öppna planlösningen mot vardagsrummet gör köket till en social och välkomnande plats, perfekt för allt från vardagsmiddag till livliga middagsbjudningar.

Badrum

I Viridum har badrummen designats för att förena en känsla av lyx med praktisk funktion. De sandtonade kakel- och klinker - plattorna skapar en harmonisk bas, medan duschväggarna i klarglas tillför en modern och luftig känsla. Tvättställskommoder i ton med kaklet har diskreta grepp och generösa lådor som ger smart förvaring för vardagens behov.

I de större lägenheterna finns dessutom separata WC-utrymmen eller extra badrum.

Här har vi tänkt på detaljerna som gör skillnad. Med praktiska lösningar som exempelvis en bänk - skiva och förvaringsskåp ovanför tvättmaskin och torktumlare – eller en kombimaskin i mindre lägenheter – är badrummet lika funktionellt som vackert. Det är ett rum där du kan börja och avsluta dagen med en känsla av ro och kvalitet.

Dölj
Pris
3 850 000 kr
Avgift
3 329 kr
Objektnummer
5-2103
Våning
11
Antal rum
2
Boarea
45 m2
Upplåtelseform
Bostadsrätt
Boendeform
Flerbostadshus
Balkong
Ja
Hiss
Ja
Miljömärkning
BREEAM-SE Excellent
Address
, 12629 Hägersten

Dokument

Planritning

Kommande visning

10 december kl. 16:10-16:40

Tellusborgsvägen 87

Har du frågor om bostaden?

Vår mäklare hjälper dig gärna.

Välkommen med din intresseanmälan

En intresseanmälan innebär att du anmäler intresse för en specifik lägenhet och att du kommer att bli kontaktad av en mäklare från Notar

(*)” anger obligatoriska fält

Detta fält är dolt när formuläret visas