Hoppa till innehåll

Telefonplan, Viridum

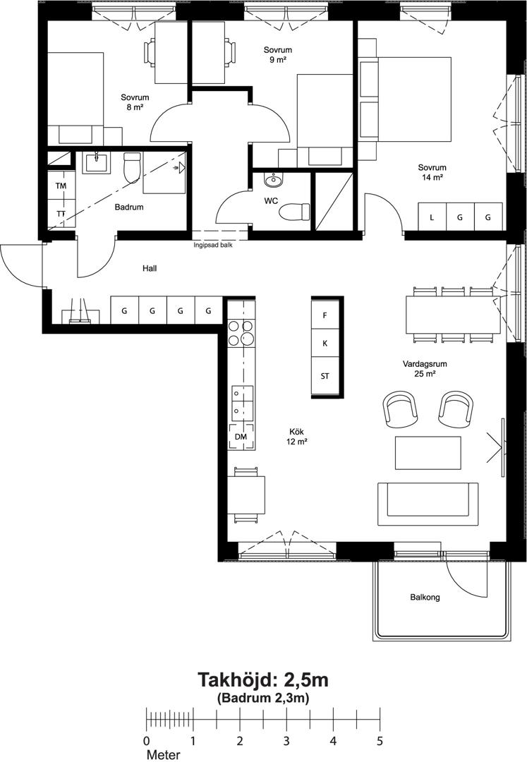
4 rok, 90 m2

Gavelfyra med fönster i tre väderstreck

Otroligt välplanerad fyra på ljust gavelläge med dubbla WC, socialt kök och vardagsrum samt en rymlig balkong i västerläge.

Lägenhetens inredning

Bostäderna i Viridum präglas av en harmonisk mix av ljusa färger och naturnära material. Samtliga väggar målas i en ljus och varm, gråbeige nyans. Rumsgolven får en svagt vitpigmenterad ekparkett och hallen får samma sandstensmönstrade granitkeramik som våtrummen.

Visa mer

Kök

Köket i Viridum är utformat för att vara en harmonisk kombination av design och funktionalitet. Den ljusa ekparketten möter skåpsluckor i en varm, sandig ton med stilrena och diskreta handtag som förstärker den tidlösa känslan. Bänkskivan och stänkskyddet är i ett hållbart laminat med en kalkstensinspirerad finish som knyter samman kökets naturliga färgpalett och skapar en rofylld atmosfär.

I Viridum är köket mer än en plats för matlagning – det är en central del av ditt hem. Den öppna planlösningen mot vardagsrummet gör köket till en social och välkomnande plats, perfekt för allt från vardagsmiddag till livliga middagsbjudningar.

Badrum

I Viridum har badrummen designats för att förena en känsla av lyx med praktisk funktion. De sandtonade kakel- och klinker - plattorna skapar en harmonisk bas, medan duschväggarna i klarglas tillför en modern och luftig känsla. Tvättställskommoder i ton med kaklet har diskreta grepp och generösa lådor som ger smart förvaring för vardagens behov.

I de större lägenheterna finns dessutom separata WC-utrymmen eller extra badrum.

Här har vi tänkt på detaljerna som gör skillnad. Med praktiska lösningar som exempelvis en bänk - skiva och förvaringsskåp ovanför tvättmaskin och torktumlare – eller en kombimaskin i mindre lägenheter – är badrummet lika funktionellt som vackert. Det är ett rum där du kan börja och avsluta dagen med en känsla av ro och kvalitet.

Dölj
Pris
6 650 000 kr
Avgift
6 659 kr
Objektnummer
3-1101
Våning
1
Antal rum
4
Boarea
90 m2
Upplåtelseform
Bostadsrätt
Boendeform
Flerbostadshus
Balkong
Ja
Hiss
Ja
Miljömärkning
BREEAM-SE Excellent
Address
Tellusborgsvägen 87, 12629 Hägersten

Dokument

Planritning

Är du intresserad av att komma på visning?

När vi har visningstider inbokade visas de här. Har du frågor om våra kommande visningar?

Kontakta ansvarig mäklare så hjälper de dig.

Har du frågor om bostaden?

Vår mäklare hjälper dig gärna.