Hoppa till innehåll

Tureberg, Ture Allé

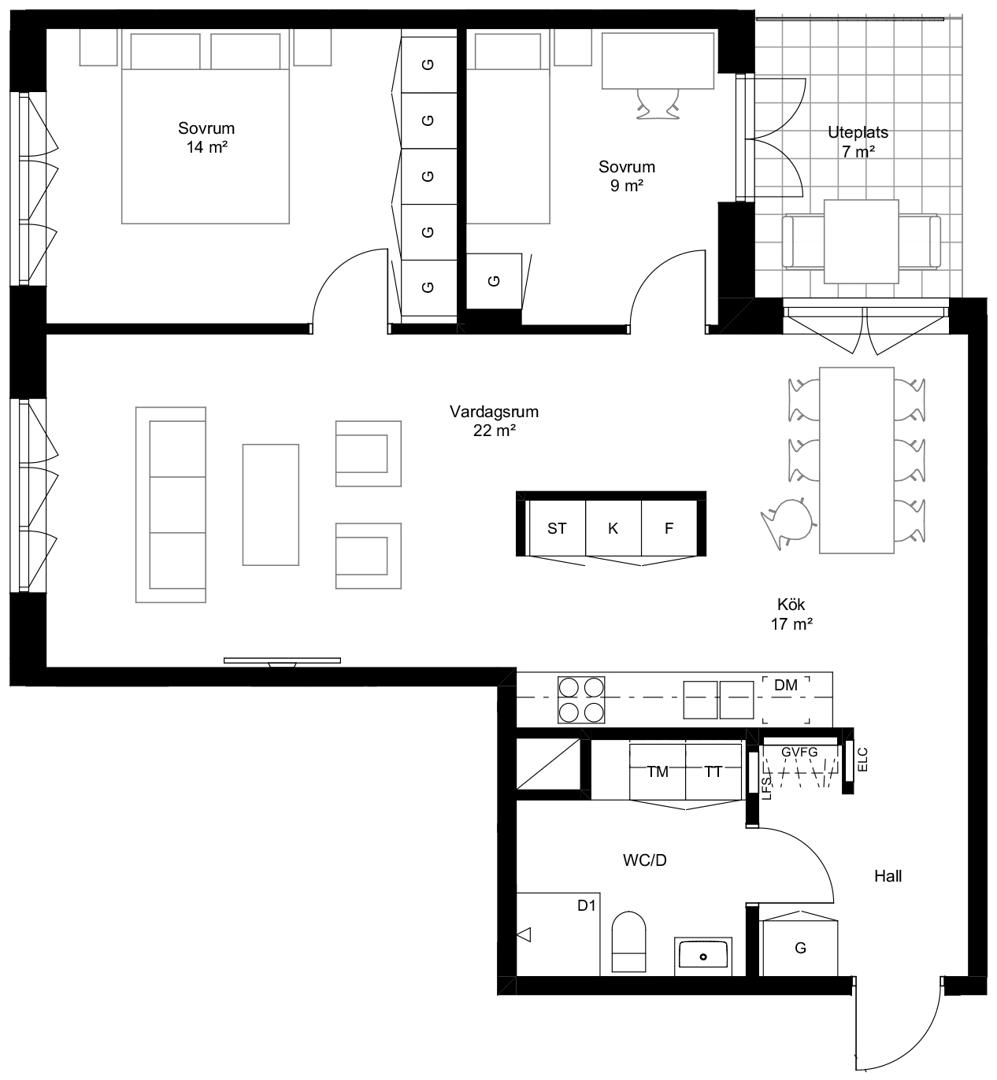
3 rok, 75 m2

Öppen och trevlig planlösning med uteplats mot gård!

Lägenhetens inredning

Bostäderna i Ture allé präglas av en harmonisk mix av ljusa färger och naturnära material. Samtliga väggar målas i en ljus och varm, gråbeige nyans och på golvet ligger en vitpigmenterad ekparkett.
Alla lägenheter har golvvärme istället för radiatorer som ger en härlig komfort med en behaglig och jämn värme i hela bostaden.

Kök

Köket är designat för att kombinera elegans och funktion. Basen av ljus ekparkett, tillsammans med sandfärgade skåpsluckor och diskreta handtag, ger en sammanhållen och lugn känsla i köket. Bänkskiva
och stänkskydd är i laminat med en kalkstens liknande yta som harmoniserar med resten av köket.

Visa mer

I Ture allé är köket mer än en plats för matlagning – det är en central del av ditt hem. Den öppna planlösningen mot vardagsrummet gör köket till en social och välkomnande plats, perfekt för allt från vardagsmiddag till livliga middagsbjudningar.

Badrum

I Ture allé har vi skapat moderna badrum där stora, sandfärgade kakel- och klinkerplattor tillsammans med duschväggar i klarglas ger en känsla av lyx och harmoni. Tvättställskommoderna går ton i ton med kaklet och har en diskret grepplist och dubbla lådor med gott om förvaringsmöjligheter. Samtidigt är badrummen funktionellt planerade med bänkskiva och förvaringsskåp ovanför tvättmaskin och tumlare. Mindre lägenheter har kombimaskin med ovanliggande bänkskiva.

Dölj
Pris
3 570 000 kr
Avgift
5 360 kr
Objektnummer
3-1003
Antal rum
3
Boarea
75 m2
Upplåtelseform
Bostadsrätt
Boendeform
Flerbostadshus
Hiss
Ja
Förråd
Ja
Miljömärkning
BREEAM-SE Excellent
Address
Turebergs allé 4, 191 62 Sollentuna

Dokument

Planritning

Generös takhöjd om hela 3 meter

Många av lägenheterna erbjuder en generös takhöjd om cirka 3 meter. Den extra takhöjden skapar rymd och ett fantastiskt ljusinsläpp. Resultatet är hem som upplevs större och har en mer luftig känsla.

Garage i huset

I huset finns ett garage med totalt 59 parkeringsplatser. Vid den första upplåtelsen kommer samtliga lägenheter om 3–5 rum och kök (totalt 54 bostäder) att garanteras möjlighet att hyra en parkeringsplats. För lägenheter om 1–2 rum och kök tilldelas parkeringsplatser i mån av tillgång, enligt turordning.