Hoppa till innehåll

Bagarmossen

Fågelboet

Bagis nästa höjdpunkt

Nu är bokningsanmälan öppen

Högt bland trädtopparna, där fågelkvittret fyller luften, växer ett nytt tiovåningshus fram. Här möts hemmets trygghet och Bagis frihet, gemenskap och grönska i en fin balans. Det är en plats där du kan landa, växa och prova dina vingar med rötterna i Bagarmossens rytm. Fågelboet är inte bara ett bostadsprojekt utan en levande gemenskap skapad med omsorg och eftertanke.

Säljstart
Säljstartat
Tillträde
Q4 2027
Rum
3-5
Boendeform
Lägenheter
Upplåtelseform
Bostadsrätt
Miljömärkning
BREEAM-SE Excellent
Antal bostäder
28
HEMVÄLJARE

Planlösningar och priser

Här kan du hitta din bostad genom att välja mellan olika planlösningar och priser. Använd filtreringen till vänster för att anpassa din sökning efter dina behov.

PROJEKTET

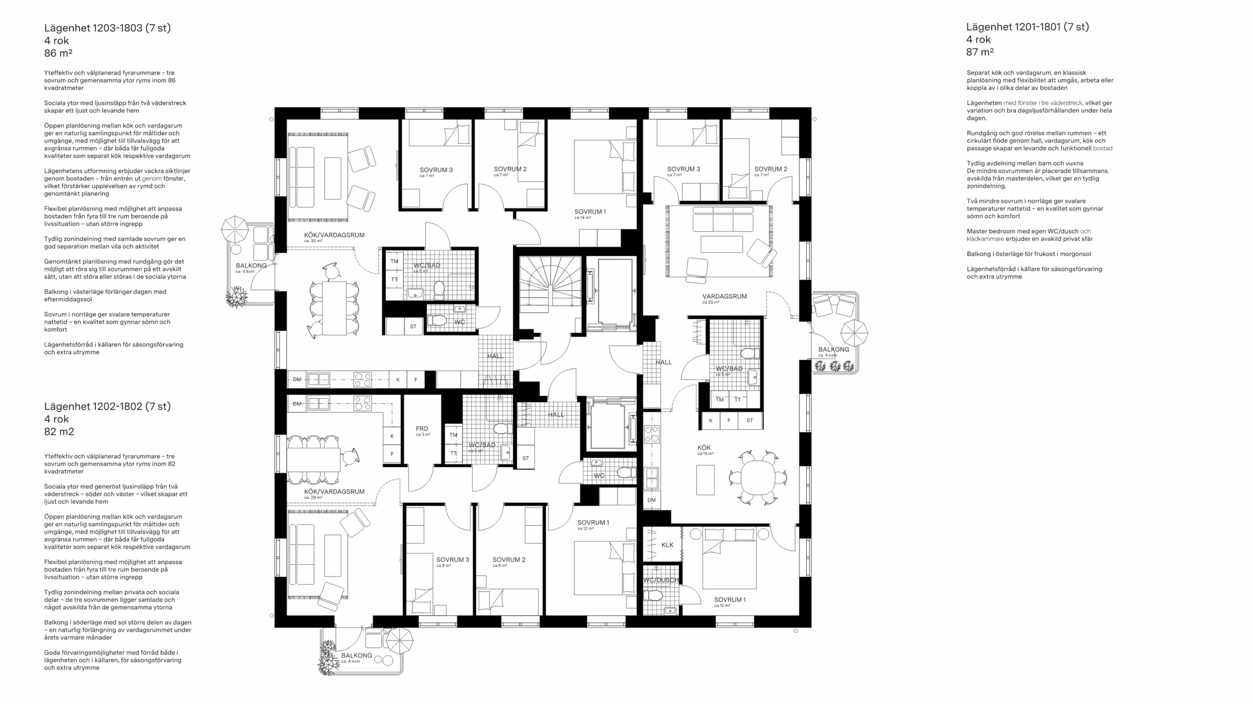
3 ROK första året, 4 ROK andra

I Fågelboet bygger vi 28 välplanerade och ljusa bostäder med 3 till 5 rum och kök. Tack vare en smart till- och frånvalsvägg i flera av lägenheterna kan du själv välja planlösning utifrån hur du vill bo. Behöver du ett extra sovrum, ett hemmakontor eller mer plats för familjen att växa i? Här finns möjligheten att anpassa hemmet efter livet.

INREDNING

Två stilspår

Varsin tolkning av samma grundkänsla ges genom två stilinriktningar.

Ljus: En varm och inbjudande originalstil som präglas av mjuka naturtoner. Färgpaletten förmedlar lugn, harmoni och ett behagligt flöde, där varje nyans samspelar för att skapa en stillsam och rofylld atmosfär.

Retro: En lekfull retroflört som väcker nyfikenhet med sina färgstarka och energifyllda inslag. Här möts mönster, former och kulörer i en livfull hyllning till svunna epoker, där uttrycket blir både charmigt och karaktärsfullt.

OMRÅDET

Natur och kultur på en och samma plats

Det unika läget ligger ett stenkast från tunnelbanan i Bagarmossen, och runt hörnet hittar du det bästa centrum har att erbjuda: från lokala restauranger och bageri till yogastudio, matbutiker och service.

Nackareservatet och Bagarmossenskogen ligger inom perfekt avstånd för spontana promenader eller lekfulla utflykter. Bagarmossens Folkets hus bidrar med teater, föreläsningar och filmvisningar, och tillsammans med butiker, kaféer och restauranger ger det området sin personliga och trivsamma karaktär. I området finns också flera förskolor och skolor, med lekplatser och grönområden som skapar fina förutsättningar för familjelivet.

Broschyr

Ditt framtida hem

Ta del av projektets alla detaljer och kvaliteter i vår digitala broschyr. Här får du hela bilden av livet i ditt nya hem.


TIDSLINJE

Resan mot ditt nya hem

Följ vår resa från idé till verklighet. Se var i processen projektet befinner sig idag och hur vi närmar oss inflyttningsklara hem.

  1. 1
    Planeringsfas

    Bostadsprojektet planeras utifrån dess förutsättningar och läge. Allt för att skapa så bra bostäder som möjligt.

  2. 2
    Säljstartat

    De första lägenheterna släpps till försäljning. Du får tillgång till priser, försäljningsmaterial och materialval.

  3. 3
    Produktionsstartat

    Vi sätter spaden i marken och byggnationen av bostäderna påbörjas.

  4. 4
    Inflyttningsklart

    Bostäderna är färdigställda och besiktigade. Nu är det dags att flytta in.

  5. 5
    Slutsålt

    Alla grannar har nu hittat hem. Samtliga bostäder i projektet är sålda.

  6. 6
    Färdigställt

    Nu är hela bostadsprojektet klart och inflyttat. Vi hoppas alla ska trivas i sin nya boendemiljö.

Är du intresserad av att komma på visning?

När vi har visningstider inbokade visas de här. Har du frågor om våra kommande visningar?

Kontakta ansvarig mäklare så hjälper de dig.

Har du frågor om bostaden?

Våra mäklare hjälper dig gärna.

Köpresan

Nyproduktion steg för steg

Följ stegen från intresseanmälan till inflyttning och se hur processen går till.

Trygghetspaket

Ett tryggt bostadsköp med oss

Vi vill att du ska känna dig trygg hela vägen hem. Därför finns vårt trygghetspaket som stöttar dig om planerna ändras.

Intresseanmälan

(*)” anger obligatoriska fält

Detta fält är dolt när formuläret visas
Storlek(*)